即
入居可
ルワージュ八幡駅前Ⅱ(単)
2-301号室 / 2LDK
入居可
2-301号室 / 2LDK
一般賃貸住宅
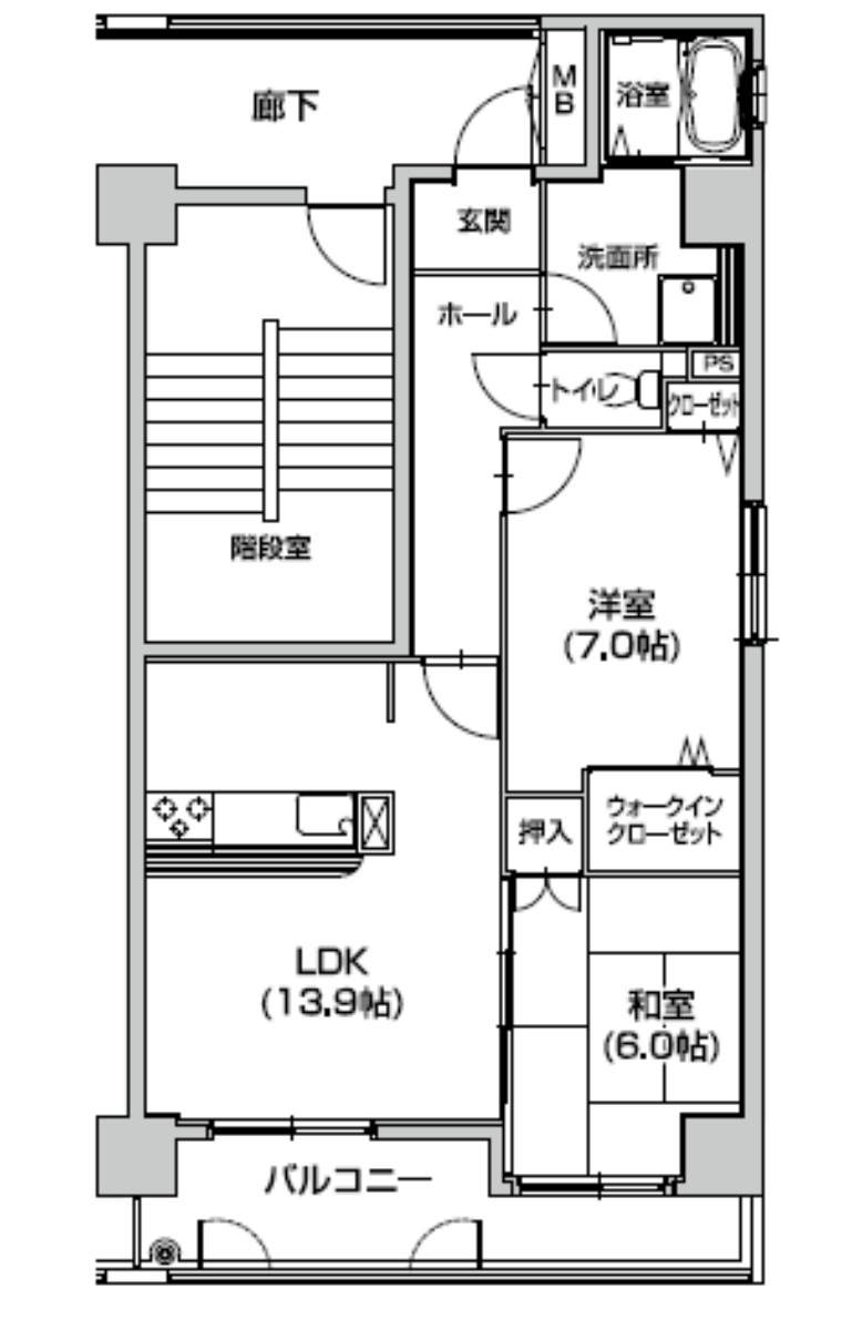
募集区画
3F2-301号室
2LDKのお部屋になります♪
-
家賃 /
共益費 - 7.48万円 / 4,700円
- 敷金
- 14.96万円
- 交通
- 住所
- 八幡東区西本町四丁目1番2
- タイプ
- 2LDK
- 間取り
- LDK(13.9)和(6.0)洋(7.0)
- 階層
- 3 / 13階
- 専有面積
- 66.73㎡
- 築年月
- 2004年12月竣工~
- 構造






