即
入居可
東沼
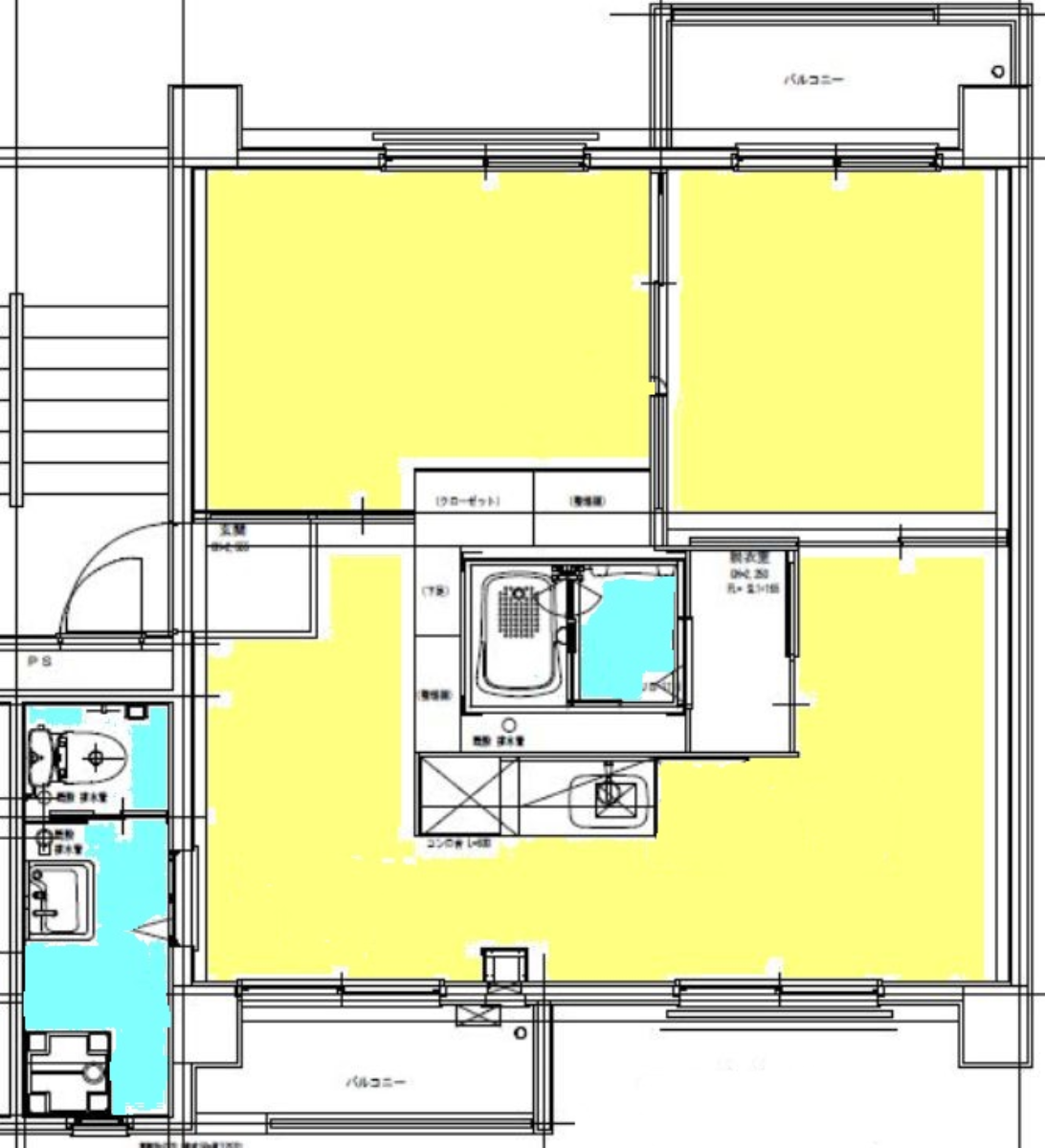
3-401号室 / 1R
入居可
3-401号室 / 1R
一般賃貸住宅
募集区画
4F3-401号室
3Kをフルリノベーションして1Rにしたお部屋です♪保証会社ご利用で、なんと5年間10%引きの上層階割ご利用できます!!
-
家賃 /
共益費 - 4.40万円 / なし
- 敷金
- 8.80万円
-
減額・
割引 - 上層階応援 近居応援 新卒者応援
- 交通
-
西鉄沼バス停(徒歩約5分)
- 住所
- 小倉南区沼本町四丁目3番3
- タイプ
- 1R
- 間取り
- ★変化タイプ★専有面積45.50㎡
- 階層
- 4 / 5階
- 専有面積
- 45.5㎡
- 築年月
- 1974年11月竣工~
- 構造
- 鉄筋コンクリート造陸屋根 5階建






